phone
Llámanos ahora: (+34) 962 920 314
how_to_reg
Para consultar todos los precios regístrese
add_shopping_cart
Solo vendemos a empresas del sector
Español
Español
English
Français
Cuenta
Iniciar sesión
Registro
Categorías
Categorías
Categorías
Abatibles
Cierres de Presión
Cierres de Golpete
Compases proyectantes y muro cortina
Compases retenedores
Aireadores
Aireador interior autorregulable
Rejilla exterior
Aireador interior manual
Antipanicos
Barandillas
Sistemas Glass U
Pies de barandilla
Accesorios barandilla
Accesorios barandilla cristal
Pasamanos de aluminio
Bisagras
Camara europea 2ª hoja
40x20 2ª hoja
Especiales
Camara europea 3ª hoja
Camara europea 4ª hoja
Camara europea puerta
40x20 3ª hoja
40x20 4ª hoja
Calzos de acristalar
Cerraduras
De 1 punto
De 3 puntos
Cilindros
Otros accesorios de cerraduras
Cerraderos
Cerraderos eléctricos
Cilindros de seguridad
Cilindros especiales
Cierrapuertas
Con retenedor
Sin retenedor
Oculto
Cierres
Corte recto
Perimetral
Uñas y contracierres
Con llave
Centrales
Otros cierres
Cremonas
Apertura exterior
Apertura interior
Apertura exterior con llave
Apertura interior con llave
Elevables y oscilopa
Escuadras
Europea
Con teton de bloqueo
Con muelle
Alineación
Otros modelos
Felpa
Sin lamina
Con lamina
T3Band
Monoband
Garras y premarco
Goma
Acristalar cuña
Mosquitera
Marco central
Marco exterior
Junta hoja
Acristalar hoja
Angulos vulcanizados
Corredera
Antipinzadedos
Kit Corredera Plasti
Guiados
Sin guiar
Kits para perimetral
Otros componentes
Kit Corredera comple
Rodamiento de bolas
Rodamiento de agujas
Mallorquina fija
Mallorquina movil
Mecanismos P-70 con rotary
Mecanismos P-70 con palanca
Mandos rotary P-70
Mecanismos palanca P-25
Manillas
Recuperable
Multifuncion
Recuperables especiales
Multifuncion con llave
Multifuncion especiales
Mosquitera
Motores
Motores de cadena
Motores para ventanas correderas
Pulsadores de persiana
Accionadores
Motores para proteccion solar
Motores de persiana
Otros
Multipunto
Multipunto con gancho
Multipunto perimetral
Otros accesorios multipunto
Multipunto con microventilacion
Oscilobatientes
5100 MR
100 7000 MR
Galicube Fapim
Ween Master
Magi Cube Fapim
Curvo Giesse
Sirius Stac
Otros accesorios oscilos
Outlet
Outlet cierres de presion
Outlet mamparas
Outlet pasadores y cerraderos
Outlet bisagras
Outlet cierres
Outlet cilindros
Outlet cierrapuertas
Outlet tiradores
Outlet manillas
Outlet cremonas
Outlet ruedas
Outlet oscilos
Plegables
Accesorios Plegable Serie 3545
Accesorios Plegable Convencion
Plegables para Camara Europea
Pletinas falleba
Practicables
Otros accesorios Practicable
CE Pasadores cerraderos y kits
4020 Pasadores cerraderos y kits
Grillos o fijadores
Cerrojos o pestillos
Contraventana
Apertura exterior en practicable
Puertas de Aluminio
Puerta Completa
Paneles
Cortavientos para puertas
PVC y Canal 16
Puerta de Calle
PVC otros accesorios
Osciloparalela
Plegable
Accesorios corredera PVC
Manillas PVC
Elevables PVC
Bisagras puertas
Calzos acristalar
Calzos base
Uniones mecanicas
Rotuladores
Tapas inversoras
Tornilleria
Adhesivos y limpiadores
C16 otros accesorios
Esquinas soldables
Otros sistemas de apertura
Oscilo T&T
Oscilo WK
Ruedas
Chapa
Zamak
Premium
Nylon
Confort
Sistemas de sellado
Cinta multifuncion
Espumas y selladores
Tiradores
Simples
Dobles
Uniones
Varios
Trabaja con nostros
Trabaja 2
more_horiz
Permanent links block
Blog
Outlet (precios solo en la web)
Zona Clientes
Trabaja con nosotros
Inicio
Multipunto
Multipunto con gancho
CREMONA MULTIPUNTO GANCHO LARGO CR TR 1600 E15 C LLAVE MAGNA EVO
CREMONA MULTIPUNTO GANCHO LARGO CR TR 1600 E15 C LLAVE MAGNA EVO
Código: 19019
CREMONA MULTIPUNTO GANCHO LARGO CR TR 1600 E15 C/LLAVE MAGNA EVO
Compartir
Compartir
Tuitear
Pinterest
Descripción
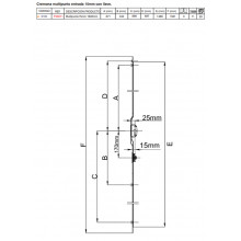
Detalle de producto
CREMONA MULTIPUNTO GANCHO LARGO CR TR 1600 E15 C/LLAVE MAGNA EVO
Referencia
19019
16 otros productos de la misma categoría:
CREMONA MULTIPUNTO GANCHO MEDIANO 600 E7 5 ZINCADA RA PG
MULTIPUNTO NI6000 1400 3 PUNTOS NI
CREMONA MULTIPUNTO gancho recto CR TR 210 E15 ZINCADA RT PG
CREMONA MULTIPUNTO GANCHO MEDIANO CR TR 1600 E15 C LLAVE RA PG
CREMONA MULTIPUNTO GANCHO MEDIANO CR TR 600 E15 ZINCADA RA PG
CREMONA MULTIPUNTO GANCHO LARGO CR TR 600 E15 ZINCADA RH PG
CREMONA MULTIPUNTO MACK6 CON ENTRADA CILINDRO 600MM 2 PUNTOS INOX AP
CREMONA MULTIPUNTO gancho recto CR TR 1600 E15 ZINCADA RT PG
CREMONA MULTIPUNTO GANCHO MEDIANO 1600 E7 5 ZINCADA RA PG
CREMONA MULTIPUNTO GANCHO CORTO CR TR 1600 E15 ZINCADA RM PG
CREMONA MULTIPUNTO MACK16 CON ENTRADA CILINDRO 1600MM 3 PUNTOS INOX AP
CREMONA MULTIPUNTO GANCHO CORTO CR TR 600 E15 ZINCADA RM PG
CREMONA MULTIPUNTO GANCHO CORTO CR GU 1600 E25 C LLAVE G 18250 16 0 1 ZINCADA TEKNICA
CREMONA MULTIPUNTO MAC10 1000MM 2 PUNTOS INOX AP
CREMONA MULTIPUNTO gancho recto CR TR 1600 E15 RT C LLAVE
CREMONA MULTIPUNTO MAC2 200MM 1 PUNTOS INOX AP
CREMONA MULTIPUNTO GANCHO LARGO CR TR 1600 E15 C/LLAVE MAGNA EVO
arrow_upward